De entre los videos y artículos sobre prefabricación que he visto y leído, todo lo referente al proyecto y la construcción del Hospital Miami Valley me ha sorprendido por su planteamiento teórico, utilizando lo que el profesor D Julián Salas define como un sistema constructivo industrializado, que es la suma de componentes específicos más componentes autónomos, como por la ejecución del proyecto, consiguiendo un notable ahorro en plazos y costes al tiempo que se mejora notablemente las condiciones de trabajo.
La empresa gestora del proyecto se llama Skanska, una multinacional constructora sueca fundada en 1887 que a día de hoy es una de las mayores del mundo con 51.000 empleados.
Estos son dos de sus videos corporativos:
http://www.group.skanska.com/en/about-us/we-are-skanska/
http://www.skanska.co.uk/about-skanska/our-history/
La distribución de espacios en la habitación se ha realizado teniendo especial consideración en dos parámetros; la optimización de las vistas al exterior desde la cama del paciente y la optimización del ángulo de visión de los sanitarios hacia el paciente.
Antes de comenzar a construirse el hospital se construyó una habitación piloto cuya distribución y colocación de instalaciones pudo ser mejorada con las aportaciones de los profesionales sanitarios.
Una vez solamente queda por responder a la cuestión de cómo construir el edificio, se plantea una solución industrializada fundamentada en la utilización de componentes estandarizados y componentes específicos al proyecto.
En esta entrada me limitaré a describir los componentes específicos que encuentro de mayor interés:
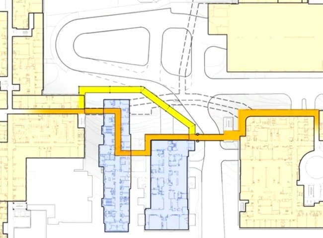
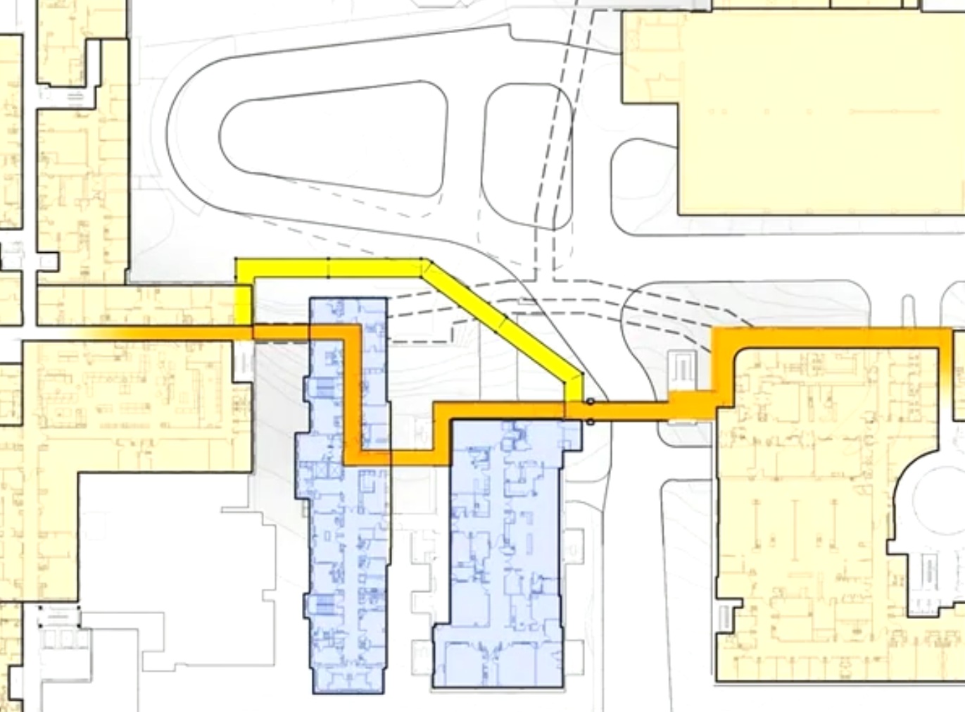
PASARELA DE ACCESO:
Como el hospital debía permanecer en servicio durante la construcción de la ampliación, se planteó desde el inicio la construcción de una pasarela que permitiera comunicar los diferentes edificios de los que dispone, intentando causar las menores molestias al tráfico de vehículos y reutilizando parte de la misma al final de la obra.
Frente a una solución constructiva tradicional que habría supuesto meses de trabajo in situ, cortes de trafico y molestias al hospital, se optó por encargar a un fabricante de fingers para aeropuertos la construcción de la pasarela.
El resultado fue un ahorro del 53% en el coste de construcción, pasar de 4-6 meses de obra in situ a únicamente 3 días y el 50% de la estructura pudo ser reutilizada.
MEP RACKS:
Todas las instalaciones que van ubicadas sobre los techos de los pasillos se montaron en taller en lugar de organizar el caos habitual que supone que oficio tras oficio vayan colocando sus conducciones, o incluso varios oficios trabajando simultáneamente en espacios reducidos, circunstancia que reduce la productividad y aumenta el riesgo de que se produzca un accidente laboral.
En cada MEP RACK se colocan los conductos de agua caliente y fría, aire acondicionado, extracción de aire, gas medicinal, electricidad, datos, cajas de control, líneas de sprinklers.
El proceso de montaje se realiza en taller, colocando unos MEP RACKS junto a otros y montando las instalaciones en un bastidor de acero que posteriormente se anclará al techo del pasillo en su ubicación final.
En esta fotografía se observa como ya están preparadas las conexiones de los MEP RACKS a los módulos de las habitaciones.
La conexión de los conductos de agua y gases entre cada elemento se realizan mediante manguitos calculados para soportar idénticas presiones.
HABITACIONES DE LOS PACIENTES:
En la distribución de las habitaciones se plantea construir tres módulos, un módulo para el cuarto de baño, otro para el tabique que divide una habitación de otra y un tercer módulo que se emplea para armario y un pequeño lavamanos.
Cada módulo dispone de todas las instalaciones específicas que requiere una habitación de hospital.
Las habitaciones al igual que los MEP RACKS se realizan en taller.
Se transportan en camiones de tres en tres evitando en todo momento el uso de transportes especiales, que dificultarían y encarecerían notablemente el proceso.
Son izados con una grua torre y depositados en la planta a la que van dirigidos mediante una bandeja en fachada y transportandos a su posición final mediante cuatro patines por cada modulo.
Recepción del módulo mediante plataforma en fachada:
Volviendo a citar al profesor D Julian Salas: El grado de industrialización de una obra es inversamente proporcional a la cantidad de residuos que se generan durante la construcción.
Vista desde el exterior con los MEP RACKS y los módulos interiores colocados.
MURO CORTINA.
El muro cortina es un elemento también prefabricado, en este caso la tecnología es sobradamente conocida, por lo que no me extenderé en esta cuestión.
El edificio ha recibido el premio a la calidad y la innovación de la asociación de constructores y contratistas de Estados Unidos.
http://www.shookconstruction.com/miami_valley_hospital_recieves_abc_s_national_pyramid_award_.php
En el fondo todo esto es posible mediante el uso intenso de programas BIM en todas las fases del proyecto y por todos los sujetos intervinientes, y como decía el escritor Michael Ende, “Pero esa es otra historia y debe ser contada en otra ocasión.”





















































[…] https://prefabricar.org/2013/10/07/prefabricacion-por-componentes-hospital-miami-valley-skanska-2/ […]